防盜截止閥工作原理:
鎖閉閥門根據“轉動無泄漏理論”,采用推拉磁路優化設計方案,把傳統閥門啟閉操作得機械用力變為扭力,通過轉動專用手輪,帶動屏蔽的內磁軛(與閥桿連接為一體)旋轉,完成閥門的啟閉。由于此啟閉機構封閉在閥門內部,取消了原來的動密封(填料),所以從根本上杜絕了閥門的外漏發生。因為操作手輪與閥桿無機械連接,故手輪可于操作完畢后取下帶走。獨特的技術結構,使磁扭力閥門具備了零外漏、防盜、自鎖功能。
防盜截止閥顯著特點:
防盜截止閥是根據供熱系統上使用單位不及時交費及油田上經常發生盜油時間造成的損失,而研制設計成功的閥門產品。防盜截止閥具有防盜性能好,可以達到零泄漏、開關輕關輕松、密封效果穩定、使用壽命長等特點。
防盜截止閥使用方法:
1、防盜截止閥安裝后,拿附件扳手,套在閥門頂部鍵槽內打開(或關閉)閥門的閘板,順時針關,逆時針開。
2、零外漏:應用“無泄漏傳動技術”,把啟閉系統封在閥體內部,轉動專用手輪,完成閥門的啟閉操作,徹底杜絕了外漏;
3、防盜:由于專用手輪與閥桿無機械連接,操作完畢后可將手輪取下帶走,可避免誤操作兼起防盜作用,便于控制、管理;二、使用方法:防盜閥門安裝后,拿附件扳手上端的小六角旋出閥門上蓋的小內六角螺絲,移開蓋子,中間就是鎖芯,如帶鑰匙鎖芯就用鑰匙打開,如帶密碼鎖芯(見防盜閥門的密碼編制和使用),拿出鎖芯后,就用附件扳手下端打開(或關閉)閥門的蝶扳,順時針關,逆時針開。
4、密碼鎖:利用磁場的導極性、強弱變化和機械尺寸設計不同等特性,可使產品具有“密碼鎖”功能,即指定的閥門只能用指定的手輪來開啟,實現“一閥一鑰”、“多閥一鑰”;
5、使用壽命長:由于閥門實現全密封機構,取消了盤根填料,減少閥桿磨損,使閥門啟閉靈活,且不會秀死,延長了閥門使用壽命;
6、環保無污染:由于杜絕了外漏,改觀了使用現場的工作環境,解決了現場的污染難題,是一種正真的綠色環保閥門。
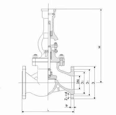
防盜截止閥,驅動方式可選用手動、蝸輪、氣動、電動,連接方式可選用法蘭,結構形式可選用防盜式,密封結構可選用軟密封、硬密封,壓力范圍PN0.1-10Mpa,公稱通徑為DN25-250mm,材質可選用鑄鋼、不銹鋼。由于閥門的使用范圍非常的廣泛,同一種閥門在不同的場合與工況有不同的搭配,如果您是非專業人士,歡迎您向本公司來電咨詢。本公司有專業技術人員為您服務!
防盜截止閥主要性能規范:
| 型號 | 工稱壓力 Mpa | 試驗壓力 Mpa | 200℃ | 250℃ | 350℃ | 適用介質 | |
| 殼體 | 密封 | 工作壓力Mpa | |||||
| FDJ41H | 1.0 | 1.5 | 1.21 | 1.0 | - | - | 水、蒸汽 |
| FDJ41H | 1.6 | 2.4 | 1.76 | 1.5 | - | - | |
| FDJ41H | 2.5 | 3.75 | 2.75 | 2.5 | 2.2 | 2.8 | |
防盜截止閥主要零部件材料:
| 零件名稱 | 閥體、閥蓋、填料壓蓋、手輪 | 閥桿、閥瓣、密封圈 | 指示盤、閥桿螺母 |
| 材料 | 灰鑄鐵、鑄鋼 | 不銹鋼 | 黃銅 |
中國.上玉集團有限公司是專業生產防盜截止閥的廠家,防盜截止閥訂貨須知:
一、①防盜截止閥產品名稱與型號②防盜截止閥口徑③防盜截止閥是否帶附件以便我們的為您正確選型。
二、若已經由設計單位選定的防盜截止閥型號,請按防盜截止閥型號直接向我公司銷售部訂購。
三、當使用的場合非常重要或環境比較復雜時,請您盡量提供設計圖紙和詳細參數,由我們上玉集團的專家為您審核把關。
感謝您訪問上玉集團公司網站,如有任何疑問您可以撥打我們的全國熱線電話:400-887-6587,我們一定會盡心盡力為您提供優質的服務。

