產品關鍵字:升降式襯膠止回閥,襯膠止回閥,升降式止回閥,止回閥
H41J升降式襯膠止回閥專用于控制一般腐蝕性介質,閥體內腔表面覆有可供選擇的各種橡膠,具有強度高、耐腐蝕性能好的特點;適用于不同工作溫度和流體管路,防止各類管路或設備上的介質逆流的單向啟閉。
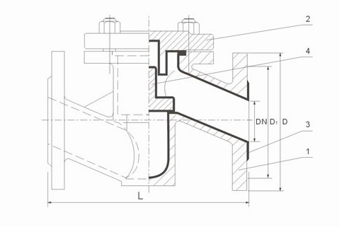
止回閥是一種依靠介質本身的流動而自動啟閉閥瓣用來阻止介質逆向流動的自動閥門。
材料:
閥體、閥蓋:鑄鐵、球墨鑄鐵
襯里:橡膠
閥瓣:碳鋼完全包覆橡膠
適用溫度:≤85℃、≤100℃、≤120℃、≤150℃(按照襯里和隔膜材料)
壓力等級:PN(MPa) 0.6 1.0 1.6

|
設計標準 |
GB12236 |
|
結構長度 |
GB12221 |
|
法蘭標準 |
GB4216 |
安裝注意事項:
放置管道時應注意使對夾式止回閥的通過方向與流體流向一致;
安裝在垂直放置的管路中。對于水平放置的管路,垂直放置對夾式止回閥;
在對夾式止回閥和蝶閥之間使用一個伸縮管,千萬不要將其與其它閥門直接相連;
在閥板操作半徑范圍內,避免加入管接頭和阻塞物;
不要在對夾式止回閥的前面或者后面安裝一個變徑管;
在彎頭附近安裝對夾式止回閥時,要注意留有足夠大的空間;
在水泵出口安裝對夾式止回閥時,至少流出六倍閥門直徑的空間以保證蝶板最終受到流體作用。
中國.上玉集團有限公司是專業生產襯膠閥門的廠家,升降式襯膠止回閥訂貨須知:
一、①升降式襯膠止回閥產品名稱與型號②升降式襯膠止回閥口徑③升降式襯膠止回閥是否帶附件以便我們的為您正確選型。
二、若已經由設計單位選定的升降式襯膠止回閥型號,請按升降式襯膠止回閥型號直接向我公司銷售部訂購。
三、當使用的場合非常重要或環境比較復雜時,請您盡量提供設計圖紙和詳細參數,由我們上玉集團的專家為您審核把關。
感謝您訪問上玉集團公司網站,如有任何疑問您可以撥打我們的全國熱線電話:400-887-6587,我們一定會盡心盡力為您提供優質的服務。
| 公稱通經 | L | D | D1 | D2 | f | b | Z-φd | D | D1 | D2 | f | b | Z-φd | |
| DN(mm) | NPS(inch) | PN1.0MPa | PN1.6MPa | |||||||||||
| 15 | 1/2 | 130 | 95 | 65 | 45 | 2 | 14 | 4-φ14 | 130 | 95 | 65 | 2 | 14 | 4-φ14 |
| 20 | 3/4 | 150 | 105 | 75 | 55 | 2 | 16 | 4-φ14 | 150 | 105 | 75 | 2 | 16 | 4-φ14 |
| 25 | 1 | 160 | 115 | 85 | 65 | 2 | 16 | 4-φ14 | 160 | 115 | 85 | 2 | 16 | 4-φ14 |
| 32 | 5/4 | 180 | 135 | 100 | 78 | 2 | 18 | 4-φ18 | 180 | 135 | 100 | 2 | 18 | 4-φ18 |
| 40 | 3/2 | 200 | 145 | 110 | 85 | 3 | 18 | 4-φ18 | 200 | 145 | 110 | 3 | 18 | 4-φ18 |
| 50 | 2 | 230 | 160 | 125 | 100 | 3 | 20 | 4-φ18 | 230 | 160 | 125 | 3 | 20 | 4-φ18 |
| 65 | 5/2 | 290 | 180 | 145 | 120 | 3 | 20 | 4-φ18 | 290 | 180 | 145 | 3 | 20 | 4-φ18 |
| 80 | 3 | 310 | 195 | 160 | 135 | 3 | 22 | 4-φ18 | 310 | 195 | 160 | 3 | 22 | 4-φ18 |
| 100 | 4 | 350 | 215 | 180 | 155 | 3 | 22 | 8-φ18 | 350 | 215 | 180 | 3 | 24 | 8-φ18 |
| 125 | 5 | 400 | 245 | 210 | 185 | 3 | 24 | 8-φ18 | 400 | 245 | 210 | 3 | 26 | 8-φ18 |
| 150 | 6 | 480 | 280 | 240 | 210 | 3 | 24 | 8-φ23 | 480 | 280 | 240 | 3 | 28 | 8-φ23 |
| 200 | 8 | 600 | 335 | 295 | 265 | 3 | 26 | 8-φ23 | 495 | 335 | 295 | 3 | 30 | 12-φ23 |
| 250 | 10 | 622 | 390 | 350 | 320 | 3 | 28 | 12-φ23 | 622 | 405 | 355 | 3 | 32 | 12-φ25 |
| 300 | 12 | 698 | 440 | 400 | 368 | 4 | 28 | 12-φ23 | 698 | 460 | 410 | 4 | 34 | 12-φ25 |
| 350 | 14 | 787 | 500 | 460 | 428 | 4 | 30 | 16-φ23 | 787 | 520 | 470 | 4 | 38 | 16-φ25 |
| 400 | 16 | 914 | 565 | 515 | 482 | 4 | 32 | 16-φ25 | 914 | 580 | 525 | 4 | 40 | 16-φ30 |
| 450 | 18 | 978 | 615 | 565 | 532 | 4 | 32 | 20-φ25 | ||||||
| 500 | 20 | 978 | 670 | 620 | 585 | 4 | 34 | 20-φ25 | ||||||
升降式襯膠止回閥常見故障有:
①閥瓣打碎;②介質倒流。
引起閥瓣打碎的原因是:
止回閥前后介質壓力處于接近平衡而又互相“拉鋸”的狀態,閥瓣經常與閥座拍打,某些脆性材料(如鑄鐵、黃銅等)做成的閥瓣就被打碎。
預防的辦法是采用閥瓣為韌性材料的止回閥。
介質倒流的原因有:
①密封面破壞;②夾入雜質。修復密封面和清洗雜質,就能防止倒流。
2022/11/7
襯氟閥門和襯膠閥門有哪些區別(都是什么材質的)2012/3/21
上玉襯膠閥門襯氟閥門-三十年的發展與輝煌2012/3/19
襯膠閥門與襯氟閥門的選型與訂購時的注意事項2012/3/8
襯膠閥門中襯膠隔膜閥的日常保養維護及維修的注意事項2012/2/28
襯膠閥門與襯氟閥門的市場現狀分析2012/2/21
襯膠閥門的主要襯里材料2012/2/15
上玉集團襯膠閥門、襯氟閥門(隔膜閥)產品2012/1/3
襯膠閥門與襯氟閥門的區別